2 pokoje 58,73m2, miejsce postojowe, taras

lokalizacja: Warszawa, Stefana Okrzei

1 190 000,00 PLN

20 262,22 PLN

Opis nieruchomości

Zapraszam do zapoznania się z inwestycją położoną w topowej lokalizacji Warszawy ul. Stefana Okrzei.
Nowoczesny budynek wielorodzinny oddany do użytku w 2008 roku. Nowoczesna bryła wkomponowana w historyczną zabudowę Starej Pragi.
Najważniejsze atuty nieruchomości:
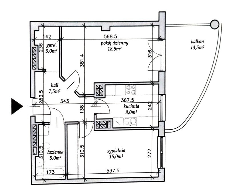
- 2 pokoje na komfortowym metrażu 58,73m2 (pokój dzienny 18,5m2, sypialnia 15m2)
- osobna widna kuchnia 8m2
- duży taras 13,5m2
- przestronna łazienka z wanną 5,05m2
- garderoba / pom. gospodarcze 3m2
- przedpokój 7,5m2
- wysokość 270cm

Mieszkanie dobrze doświetlone, ciche, zaś układ pomieszczeń umożliwia jego indywidualną i dość swobodną aranżację.
Obecna wysokość czynszu 878.00zł zawiera wszelkie zaliczki na ciepłą/zimną wodę, centralne ogrzewanie, śmieci, fundusz remontowy.
Wszystkie instalacje w dobrym stanie. Parkiet w pokojach a w pozostałych pomieszczeniach gres. Na ścianach gładź.
Pełna własność. Lokal dostępny od zaraz.
Do mieszkania przynależy miejsce postojowe w garażu płatne dodatkowo 50 000 zł.

Otoczenie:
Praga Północ. Budynek znajduje się w prestiżowej i kultowej lokalizacji Starej Pragi, w sąsiedztwie rzeki Wisły i nowej kładki pieszo-rowerowej prowadzącej na Powiśle. W pobliżu Stare Miasto i Stadion Narodowy oraz Centrum Nauki Kopernik. Blisko metra i centrum handlowego GALERIA WILEŃSKA.
Okolica doskonale skomunikowana. W pobliżu pełna infrastruktura handlowo-usługowa. Metro, autobus, tramwaj, kolejka podmiejska, dworzec kolejowy.

Budynek: Zarządzany przez wspólnotę mieszkaniową. Blok regularnie modernizowany. Klatkę schodowa czysta. Spokojne sąsiedztwo. Eleganckie części wspólne.
Ze względu na lokalizację świetna inwestycja pod wynajem krótko i długoterminowy.

Zapraszam do kontaktu Ewa Domarecka
Współpracując ze mną masz gwarancję, że przeprowadzę Cię przez cały proces zakupu nieruchomości, począwszy od prezentacji, notariusza, aż po wydanie kluczy.
Zapewniamy również bezpłatną i profesjonalną opiekę Eksperta Finansowego, który będzie wsparciem we wszystkich formalnościach związanych z finansowaniem nieruchomości, począwszy od porównania i wyboru najlepszych warunków, wsparcia w całym procesie uzyskania decyzji kredytowej, aż do wypłaty środków.

Jeśli zakup tej nieruchomości wiąże się ze sprzedażą innej - daj mi znać! Chętnie pomogę Ci przejść przez ten proces!

Kontakt do opiekuna:

Phinance S.A.

Ewa Domarecka
Nieprawidłowy adres E-mail
Mapa

Strona korzysta z plików cookie w celu realizacji usług zgodnie z Polityką prywatności. Możesz określić warunki przechowywania lub dostępu do cookie w Twojej przeglądarce.