OGŁOSZENIE SPRZEDAŻY APARTAMENTU 3-POKOJOWEGO, GDAŃSK OLIWA
Na sprzedaż oferujemy komfortowy, nowoczesny, zautomatyzowany (SMART), apartament 3 pokojowy w prestiżowej dzielnicy Gdańska. Osiedle klasy Premium, położone w sercu zielonej Oliwy.
LOKALIZACJA
• Bezpośrednie sąsiedztwo lasów, ścieżek spacerowych i rowerowych.
• Blisko wzgórza Pachołek z wieżą widokową na Zatokę Gdańską.
• Tuż obok Park Oliwski z unikalną palmiarnią i zabytkowym klimatem dzielnicy.
STANDARD INWESTYCJI
• Elewacja nowoczesna ale nawiązująca do historycznej zabudowy Oliwy.
• Panoramiczne trzyszybowe okna z żaluzjami fasadowymi i systemem smart.
• Duży taras wykończone deską kompozytową, bezprogowe wyjście.
• Podziemna hala garażowa z możliwością ładowania samochodów elektrycznych & rowerownia.
• Miejsce parkingowe w podziemny garażu - obligatoryjnie - 70.000 zł.
• Komórka lokatorska - obligatoryjnie - 41.760 zł.
• Monitoring, wideodomofony i kontrola dostępu zapewniające bezpieczeństwo mieszkańców.
ROZKLAD POMIESZCZEŃ - komfort i funkcjonalność
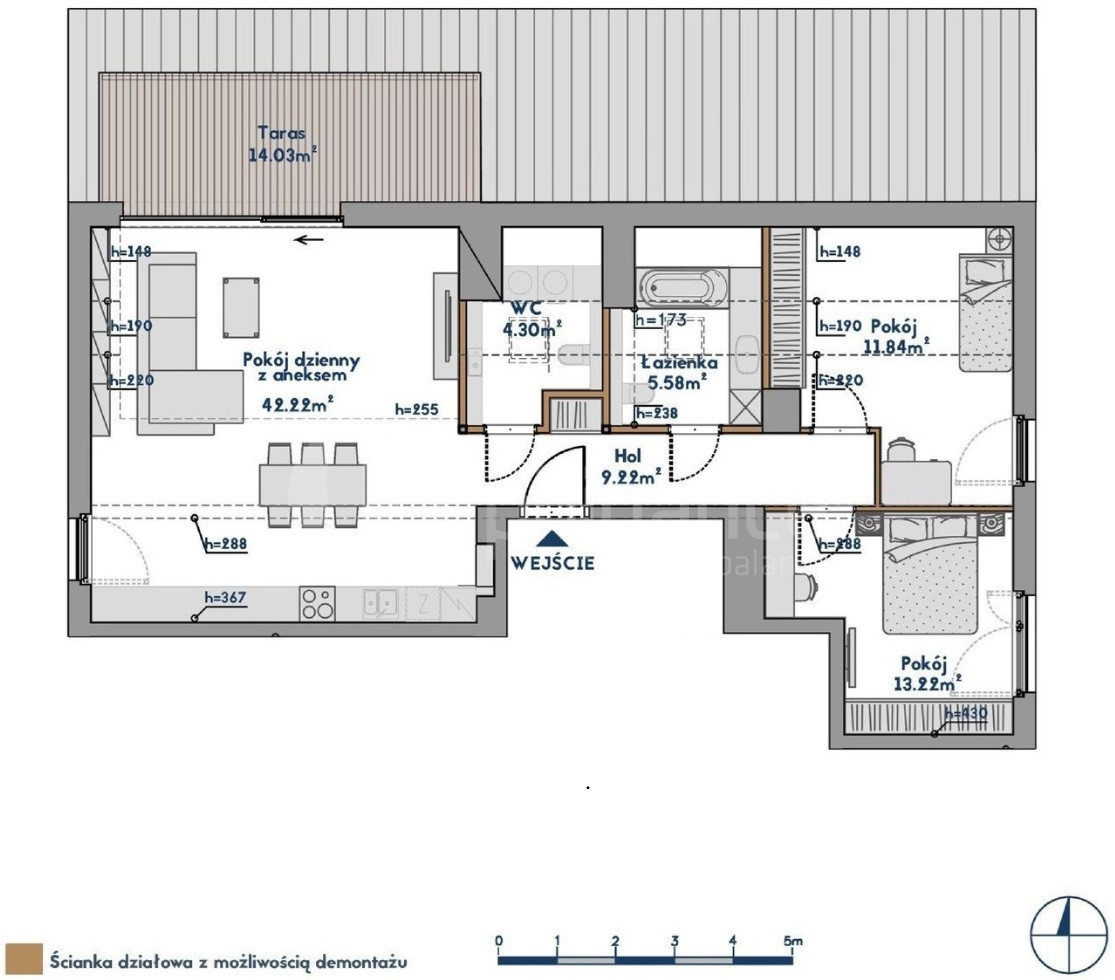
Mieszkanie o powierzchni 86,38 m² Powierzchnia po podłodze 98,50 m2 (ekspozycja 3 stronna) zostało zaprojektowane z myślą o wygodzie i estetyce. Tylko 2 mieszkania na klatce. Salon w najwyższym miejscu ma ponad 3,5 m wysokości. W skład apartamentu wchodzą:
• Pokój dzienny - 42,22 m²
• Sypialnia/pokój 1 - 11,84 m²
• Pokój/sypialnia 2 - 13,22 m²
• Łazienka z oknem - 5,58 m²
• Odrębne WC z oknem - 4,30 m²
• Hol - 9,22 m²
Dodatkowo do dyspozycji:
• Balkon - Taras - 14,03 m²
Przestrzeń zewnętrzna zapewnia idealne warunki do relaksu na świeżym powietrzu, a układ wnętrza sprzyja codziennemu komfortowi.
NOWOCZESNE TECHNOLOGIE
• W mieszkaniu zamontowano system Smart home (IoT) - sterowanie alarmem, oświetleniem, roletami i urządzeniami przez aplikację.
• Istnieje możliwość rozbudowy systemu o dodatkowe funkcje według własnych potrzeb.
UDOGODNIENIA DLA MIESZKAŃCÓW
• Klub osiedlowy w stylu angielskim z bilardem, telewizorem i nagłośnieniem.
• Luksusowa strefa fitness z nowoczesnym sprzętem.
FINANSOWANIE
• Nie macie Państwo gotówki? Nie szkodzi! PHINANCE S.A. jako pośrednik kredytowy z 23 letnim doświadczeniem oferuje preferencyjne finansowanie i pomaga zoptymalizować zdolność kredytową. Z nami otrzymacie najlepsze warunki na rynku.
DLACZEGO WARTO?
Oliwa to idealne miejsce dla osób ceniących komfort, nowoczesne rozwiązania i bliskość natury. Mieszkanie 2 pokojowe w nowej inwestycji to doskonała propozycja zarówno do zamieszkania, jak i jako inwestycja pod wynajem.
ZAPRASZAM
Obejrzycie przyszłe mieszkanie na żywo. Zdecydujecie co dalej. Do zobaczenia,
Adam Leks, kom: 604 626 212, e-mail: Adam.Leks@Phinance.pl
Wizualizacje mają charakter poglądowy i nie stanowią elementu oferty w rozumieniu art. 66 Kodeksu cywilnego. Mieszkanie sprzedawane jest w stanie deweloperskim.
Enklawa spokoju premium i smart Oliwa
lokalizacja: Gdańsk
1 721 266,00 PLN
17 474,78 PLN
Dane szczegółowe
- Typ transakcji: sprzedaż
- Typ nieruchomości: Mieszkanie
- Lokalizacja: Gdańsk
- Powierzchnia:98,50 m2
- Liczba pokoi: 3
- Rok budowy: 2024
- Piętro: 3 z 3
- Numer oferty: 107038
- Cena: 1 721 266,00 PLN
- Cena za m2: 17 474,78 PLN
-
Parking podziemny:
70 000,00 PLN (12,50 m2)
-
Komórka lokatorska:
33 030,00 PLN (1 m2)