LUKSUSOWY APARTAMENT 2-POKOJOWY, GDAŃSK OLIWA
Na sprzedaż oferujemy komfortowy, nowoczesny, zautomatyzowany (SMART), apartament 2 pokojowy w prestiżowej dzielnicy Gdańska/ Osiedle klasy Premium, położone w sercu zielonej Oliwy.
LOKALIZACJA
• Bezpośrednie sąsiedztwo lasów, ścieżek spacerowych i rowerowych.
• Blisko wzgórza Pachołek z wieżą widokową na Zatokę Gdańską.
• Tuż obok Park Oliwski z unikalną palmiarnią i zabytkowym klimatem dzielnicy.
STANDARD INWESTYCJI
• Elewacja nowoczesna ale nawiązująca do historycznej zabudowy Oliwy.
• Panoramiczne trzyszybowe okna z żaluzjami fasadowymi i systemem smart.
• Duży taras wykończone deską kompozytową, bezprogowe wyjście na Twój prywatny ogród.
• Duży ogród 57,94 m2
• Podziemna hala garażowa z możliwością ładowania samochodów elektrycznych, rowerownia
• Komórka lokatorska
• Miejsce parkingowe w podziemny garażu - obligatoryjnie - 65.000 zł
• Komórka lokatorska - obligatoryjnie - 45.045 zł
• Monitoring, wideodomofony i kontrola dostępu zapewniające bezpieczeństwo mieszkańców.
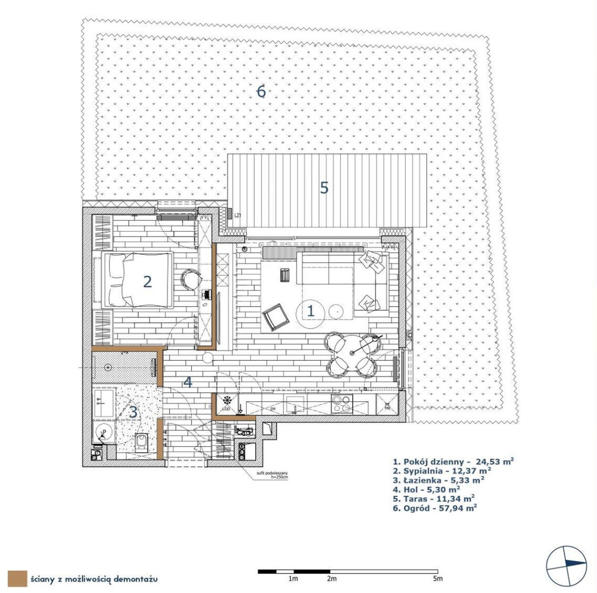
ROZKLAD POMIESZCZEŃ - komfort i funkcjonalność
Mieszkanie o powierzchni 48,95 m² zostało zaprojektowane z myślą o wygodzie i estetyce. W skład lokalu wchodzą:
• Pokój dzienny - 24,53 m²
• Sypialnia - 12,37 m²
• Łazienka - 5,33 m²
• Hol - 5,30 m²
Dodatkowo do dyspozycji:
• Taras - 11,34 m²
• Ogród - 57,94 m²
Przestrzeń zewnętrzna zapewnia idealne warunki do relaksu i kontaktu z naturą, a układ wnętrza sprzyja codziennemu komfortowi.
NOWOCZESNE TECHNOLOGIE
• W mieszkaniu zamontowano system Smart home (IoT) - sterowanie alarmem, oświetleniem, roletami i urządzeniami przez aplikację.
• Istnieje możliwość rozbudowy systemu o dodatkowe funkcje według własnych potrzeb.
UDOGODNIENIA DLA MIESZKAŃCÓW
• Klub osiedlowy w stylu angielskim z bilardem, telewizorem i nagłośnieniem.
• Luksusowa strefa fitness z nowoczesnym sprzętem.
FINANSOWANIE
• Nie macie Państwo gotówki? Nie szkodzi! PHINANCE S.A. jako pośrednik kredytowy z 23 letnim doświadczeniem oferuje preferencyjne finansowanie i pomaga zoptymalizować zdolność kredytową. Z nami otrzymacie najlepsze warunki na rynku.
DLACZEGO WARTO?
Oliwa to idealne miejsce dla osób ceniących komfort, nowoczesne rozwiązania i bliskość natury. Mieszkanie 2 pokojowe w nowej inwestycji to doskonała propozycja zarówno do zamieszkania, jak i jako inwestycja pod wynajem.
ZAPRASZAM
Dowiedzą się Państwo o "Limitowanej Ofercie" na koniec roku. Obejrzycie przyszłe mieszkanie na żywo. Zdecydujecie co dalej.
Do zobaczenia,
Adam Leks, kom: 604 626 212, e-mail: Adam.Leks@Phinance.pl
Wizualizacje mają charakter poglądowy i nie stanowią elementu oferty w rozumieniu art. 66 Kodeksu cywilnego. Mieszkanie sprzedawane jest w stanie deweloperskim.
Luksus i smart w Oliwie +ogródek wśród zieleni
lokalizacja: Gdańsk
1 599 913,62 PLN
32 684,65 PLN
Dane szczegółowe
- Typ transakcji: sprzedaż
- Typ nieruchomości: Mieszkanie
- Lokalizacja: Gdańsk Oliwa
- Powierzchnia:48,95 m2
- Liczba pokoi: 2
- Rok budowy: 2024
- Piętro: 0 z 3
- Numer oferty: 900630
- Cena: 1 599 913,62 PLN
- Cena za m2: 32 684,65 PLN
-
Parking podziemny:
70 000,00 PLN (12,50 m2)
-
Komórka lokatorska:
33 030,00 PLN (1 m2)