Nowoczesne 3 pok. balkon las Gdynia

lokalizacja: Gdynia

598 000,00 PLN

11 957,61 PLN

Opis nieruchomości

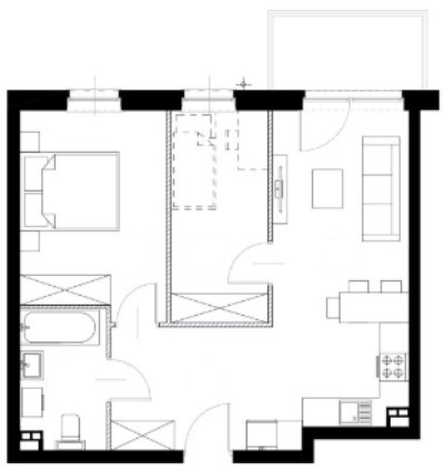
Powierzchnia: 50,01 m² • Balkon: 4,5 m² • Układ: 2 pokoje + garderoba lub (3 pokoje) • Piętro: 1 • Planowane oddanie: IV.2026r

KRÓTKI OPIS MIESZKANIA
Przestronne, nowoczesne mieszkanie w standardzie deweloperskim, zaprojektowane z myślą o komforcie codziennego życia. Duże przeszklenia zapewniają świetne doświetlenie, a funkcjonalny układ z osobną garderobą pozwala wygodnie zorganizować przestrzeń. Lokal idealny zarówno do zamieszkania, jak i jako inwestycja pod wynajem.

ROZKŁAD I METRAŻE POMIESZCZEŃ
 • Przedpokój: 7,97 m²
 • Łazienka: 4,67 m²
 • Sypialnia: 11,79 m²
 • Garderoba / mini pokój: 8,16 m²
 • Salon z aneksem kuchennym: 17,42 m²
 • Balkon: 4,5 m²
Układ mieszkania jest wyjątkowo funkcjonalny - duża garderoba pełni rolę dodatkowego pomieszczenia gospodarczego (z możliwością adaptacji na mini pokój) a ustawny salon z aneksem daje wiele możliwości aranżacyjnych.

ATUTY INWESTYCJI I OSIEDLA
 • Lokalizacja: spokojna, zielona część miasta w otoczeniu terenów rekreacyjnych i z szybkim dojazdem do głównych arterii.
 • Kameralna zabudowa: cztery 3 piętrowe budynki z garażami podziemnymi i miejscami naziemnymi.
 • Pakiet eco i oszczędności: panele fotowoltaiczne, pompa ciepła, energooszczędne oświetlenie LED - realne obniżenie kosztów eksploatacji.
 • Smart home (opcjonalnie): możliwość sterowania ogrzewaniem, oświetleniem i wybranymi funkcjami z poziomu aplikacji.
 • Pakiet antysmogowy: filtry z membraną z nanowłókien w standardzie.
 • Udogodnienia: stacje ładowania aut elektrycznych, rowerownie, stojaki rowerowe, plac zabaw, lokale usługowe na parterach.
 • Komunikacja: szybki dojazd do obwodnicy, centrum miasta i przystanków komunikacji miejskiej.

MIEJSCA POSTOJOWE I DODATKOWE INFORMACJE
 • Miejsca postojowe: dostępne; m.p. naziemne 20 000 zł, m.p. w garażu podziemnym 30 000 zł.
 • Wykończenie części wspólnych: trwałe płytki gresowe, energooszczędne oprawy LED, estetyczne elementy wykończenia holi.
 • Dostępne lokale usługowe: w inwestycji przewidziano lokale ułatwiające codzienne zakupy i usługi.

FINANSOWANIE
 • Phinance S.A. - od lat specjalizujemy się w kompleksowym doradztwie finansowym i kredytowym.
Pomagamy w bezpiecznym przeprowadzeniu całego procesu zakupu, również z finansowaniem hipotecznym.

KONTAKT (6 dni w tygodniu 9:oo - 21:oo):
Adam Leks — doradca sprzedaży i finansowania Phinance S.A. Gdynia e mail: Adam.Leks@Phinance.pl, tel.: +48 604 626 212

Wizualizacje mają charakter poglądowy i nie stanowią oferty w rozumieniu art. 66 Kodeksu cywilnego. Mieszkanie sprzedawane w stanie deweloperskim. Zapraszam do kontaktu — chętnie umówię prezentację i przygotuję dodatkowe materiały.

Plan Nieruchomości

Kontakt do opiekuna:

Phinance S.A.

Adam Leks
Nieprawidłowy adres E-mail
Mapa

Strona korzysta z plików cookie w celu realizacji usług zgodnie z Polityką prywatności. Możesz określić warunki przechowywania lub dostępu do cookie w Twojej przeglądarce.